или оставьте заявку на обратный звонок
Планировка
Проект КД-333, это дом для полноценного проживания большой семьи, где уютный уголок найдется для каждого.
В данном проекте объединены технологии классического клееного бруса и фахверковой системы. Все стены выполнены из классического клееного бруса с соединением на сити-угол, а фасад здания сделан из опорно-балочной системы по технологии фахверк.
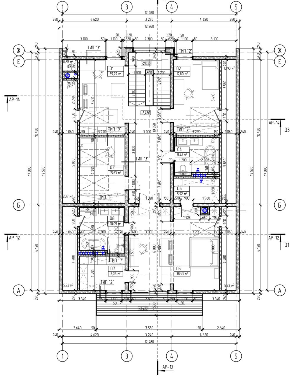
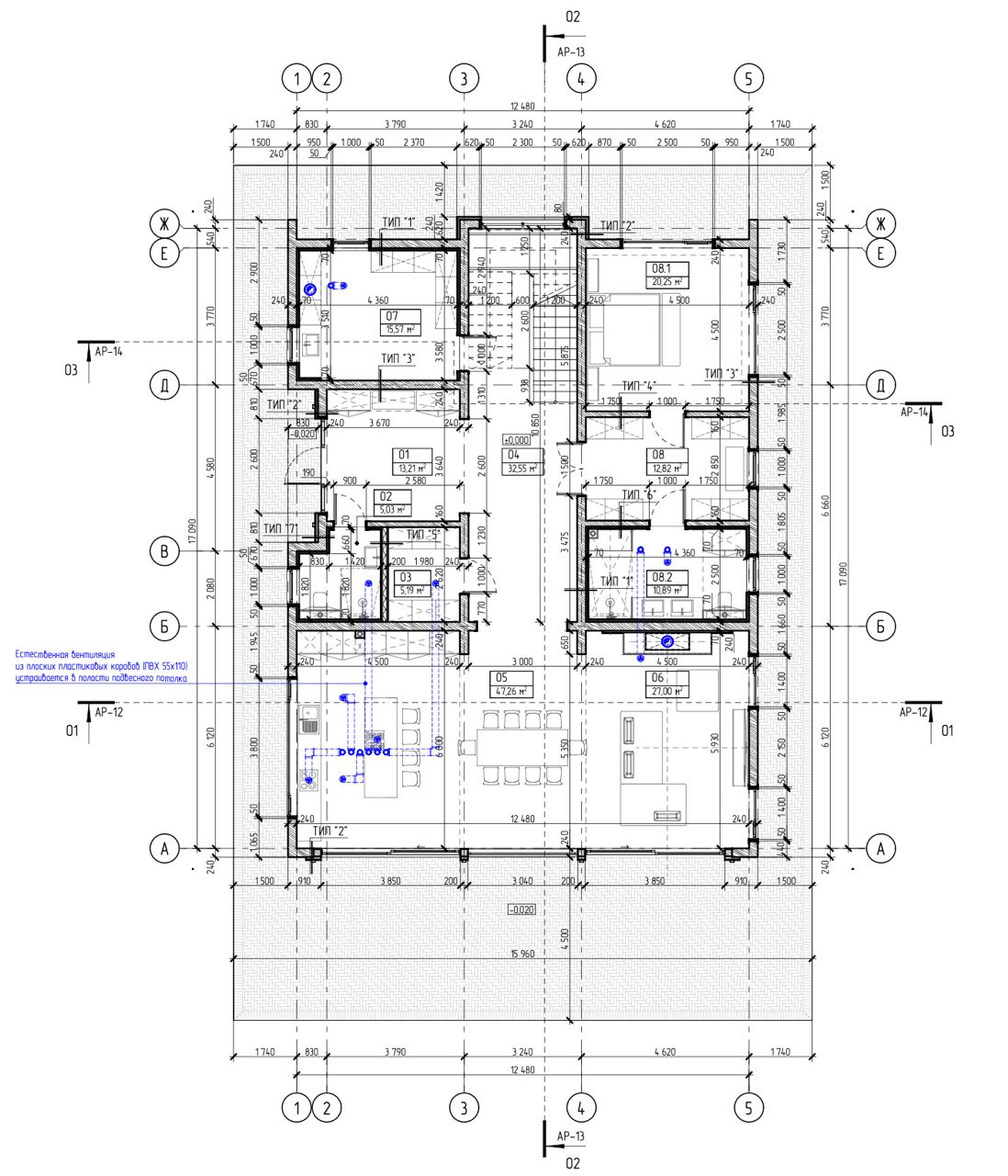
При входе в дом вы попадаете в просторную прихожую-13,21м2, в гостиной, размером 74,26м2 располагается большая кухня, кухонный остров, большой обеденный стол, зона отдыха с диван и камином, а также большие порталы для выхода на террасу.
Особенности
Проект КД-333 - дом для большой семьи, где гармонично соединились классика и современность. Тёплые стены из клееного бруса и эффектный фахверковый фасад создают уникальный стиль. Просторная гостиная объединяет семью, а у каждого есть свой личный уголок.
Две технологии в одной: надёжные стены из клееного бруса и лёгкий фахверковый фасад. Умная планировка разделяет пространство: хозяйская спальня на первом этаже, а комнаты детей и гостей - на втором. Центр дома - большая гостиная-кухня в 74 м² с камином и выходом на террасу.
Дом для многолетнего комфорта всей семьи. Просторная прихожая, изолированная мастер-спальня на первом этаже и отдельная зона для детей на втором. Здесь создана среда, где технологии служат атмосфере надёжности, тепла и свободы.
Характеристики
-
Общая площадь дома
376 м2
-
Жилая площадь
333 м2
-
Этажность
2 этажа
-
Прихожая
13,21 м2
-
Котельная
15,57м3
-
Мастер-спальня
43,96 м2
-
Кухня-гостинная
74,26 М3
-
Мастер-спальня с балконом на втором этаже
56,58 м2
-
Спальня на втором этаже
17,8 м2
-
Вторая спальня на втором этаже
15,63 м2
-
Комната отдыха на втором этаже
17,8 м2
-
Сан.узел
8,33 м2
По вашим предпочтениям можно
внести изменения в типовой проект
Получите подробную консультацию по данному проекту
или оставьте заявку на обратный звонок
Что входит в стоимость?
Подготовка участка, проект, материалы, сборка и установка домокоплекта
3D проект
Архитектурное решение с 3D видами
Конструктивная часть
План фундамента (по согласованию), размер кровли, сборочные чертежи всех элементов дома от нижнего бруса и до стропильной системы
Производство, пропитка и покраска клееного бруса
Подготовка клееного бруса для составления стен дома и стропильной системы. Пропитка бруса TEKNOS,ZOBEL, Sirca (пропитать дом необходимо сразу же после сборки). Наша компания может оказать услугу по пропитке и покраске дома после согласования цвета с заказчиком. Это наше требование и рекомендация, так как при отсутствии защитного слоя (лака, грунтовки, масла), дерево может впитать влагу, потемнеть/почернеть. В таком случае производитель не несет гарантию за дом.
Окна и двери
Деревянные окна, двухкакмерные стеклопакеты с европейской фурнитурой, деревянные двери с немецкой фурнитурой и замками
Кровля
Фальцевая кровля, металлочерепица, гибкая кровля), утеплитель компании “Технониколь”
Этапы постройки дома
постройки дома