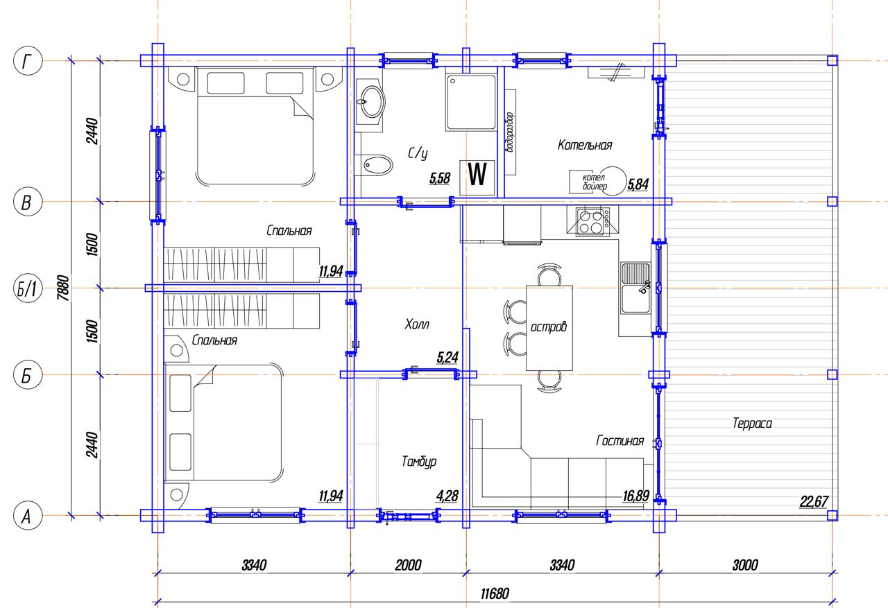
Характеристики

  • Общая площадь дома

    92 м2

  • Жилая площадь

    62 м2

  • Этажность

    1 этаж

  • Спальня 1

    11,94 м2

  • Спальня 2

    11,94 м2

  • Тамбур

    4,38 м2

  • Сан. узел

    5,58 м2

  • Кухня-Гостиная

    16,89 м2

  • Котельная

    5,84 м2

  • Терраса

    22,67 м2

  • Цена

    51990$

По вашим предпочтениям можно
внести изменения в типовой проект

Планировка

Проект КД-62 — прекрасная альтернатива двухкомнатной квартире во всех отношениях. Этот дом идеально подойдёт для молодой семьи или для тех, кто хочет насладиться спокойствием вдали от городской суеты. Продуманная планировка обеспечивает отличную эргономику, а уютная терраса создаёт атмосферу отдыха и уюта. На площади 62 м² размещено всё необходимое для комфортной и современной жизни. Этот дом не просто жильё — это ваша личная территория покоя и гармонии. Выбирайте КД-62 — и почувствуйте, как начинается новая, настоящая жизнь за городом.

первый этаж
План дома

Особенности

Проект КД-62 — это не просто дом, это стиль жизни, где каждая деталь продумана до мелочей. Он заменит городскую квартиру, подарив вам свободу, воздух и пространство.

Cовременный дом площадью 62 м² сочетает уют и функциональность — идеальное решение для молодой семьи или пары, ценящей комфорт и независимость.

Здесь всё продумано: просторная кухня-гостиная для тёплых вечеров, светлые спальни для полноценного отдыха, и терраса, где утренний кофе становится ритуалом наслаждения.

Получите подробную консультацию по данному проекту

или оставьте заявку на обратный звонок

    Что входит в стоимость?

    Подготовка участка, проект, материалы, сборка и установка домокоплекта

    3D проект

    Архитектурное решение с 3D видами

    Конструктивная часть

    План фундамента (по согласованию), размер кровли, сборочные чертежи всех элементов дома от нижнего бруса и до стропильной системы

    Производство, пропитка и покраска клееного бруса

    Подготовка клееного бруса для составления стен дома и стропильной системы. Пропитка бруса TEKNOS,ZOBEL, Sirca (пропитать дом необходимо сразу же после сборки). Наша компания может оказать услугу по пропитке и покраске дома после согласования цвета с заказчиком. Это наше требование и рекомендация, так как при отсутствии защитного слоя (лака, грунтовки, масла), дерево может впитать влагу, потемнеть/почернеть. В таком случае производитель не несет гарантию за дом.

    Окна и двери

    Деревянные окна, двухкакмерные стеклопакеты с европейской фурнитурой, деревянные двери с немецкой фурнитурой и замками

    Кровля

    Фальцевая кровля, металлочерепица, гибкая кровля), утеплитель компании “Технониколь”

    Этапы постройки дома

    постройки дома

    Похожие проекты

    Nord 2

    Этажность:

    1

    Спален:

    3

    Санузел:

    2

    Стоимость:

    Уточняйте у менеджера

    Подробнее
    dom_kd-333

    КД-333

    Этажность:

    2

    Спален:

    4

    Санузел:

    3

    Стоимость:

    Уточняйте у менеджера

    Подробнее

    KД-62

    Этажность:

    1

    Спален:

    2

    Санузел:

    1

    Стоимость:

    51990

    Подробнее