Характеристики

  • Общая площадь дома

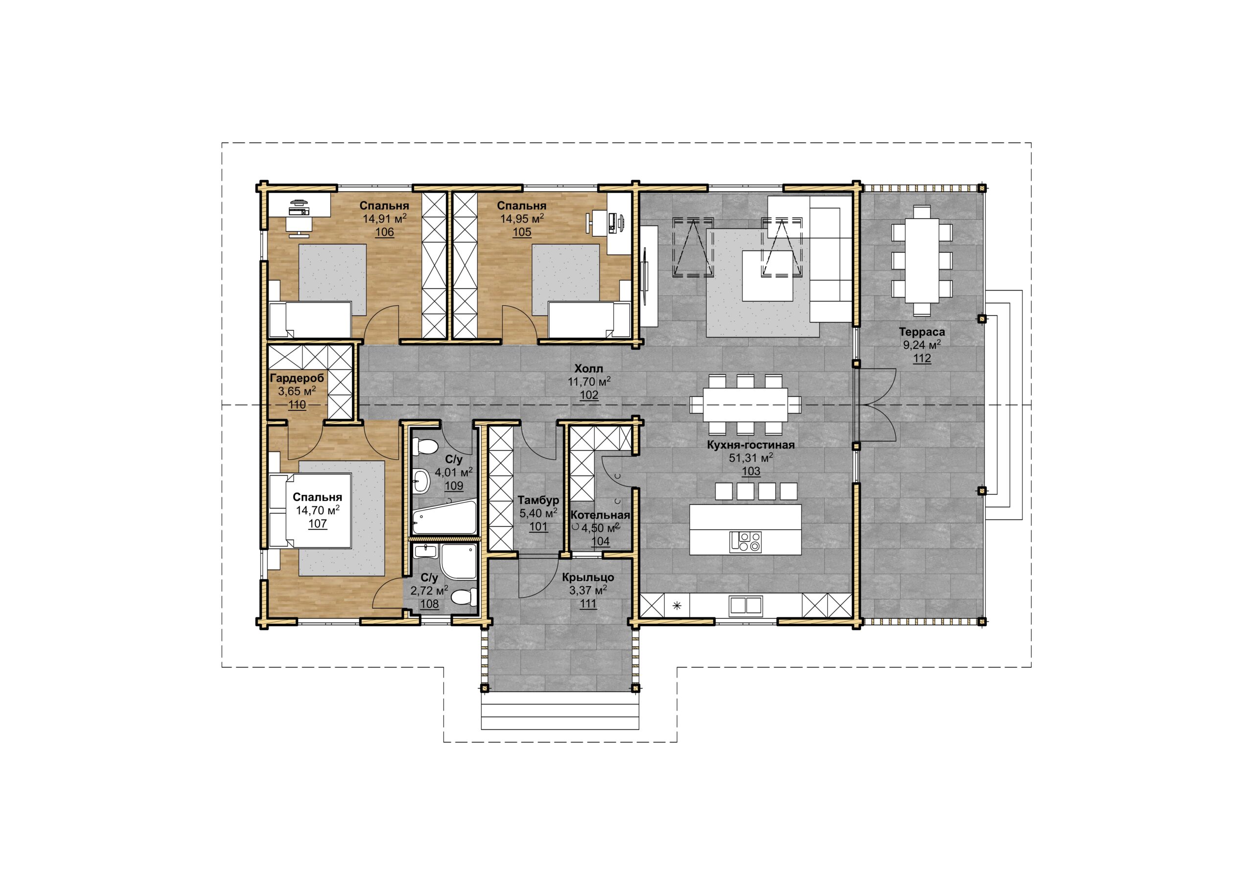
    169,88 м²

  • Этажность

    1 этаж

  • Тамбур

    5,4 м²

  • Холл

    11,7 м²

  • Кухня-гостиная

    51,31 м²

  • Котельная

    4,5 м²

  • Спальня

    14,95 м²

  • Спальня

    14,91 м²

  • Спальня

    14,70 м²

  • Сан. узел

    2,72 м²

  • Сан. узел

    4 м²

  • Гардеробная

    3,65 м²

  • Крыльцо

    11,23 м²

  • Терраса

    30,8 м²

  • Цена

    Уточняйте у менеджера

По вашим предпочтениям можно
внести изменения в типовой проект

Планировка

Одноэтажный дом с прекрасной эргономикой, в котором продумано все для проживания большой семьи. Объединенная гостиная и кухня с витражными окнами и выходом на террасу делают данную часть дома самой уютной, где все челны семьи будут проводить большую часть своего времени. Стоимость за домокомплект от 33 000 долларов США Стоимость за дом (теплый контур) от 63 700 долларов США

первый этаж
План дома

Особенности

Дом оснащен тремя спальнями. Одна из спален оборудована отдельным санузлом и гардеробом и предназначена для хозяев дома.

В доме также есть вместительная прихожая и котельная, где также можно разместить постирочный узел.

В зимнее время просторная гостиная позволит разместить всех гостей внутри дома, в летнее же время с данной задачей справится терраса в 32 квадратных метра.

Получите подробную консультацию по данному проекту

или оставьте заявку на обратный звонок

    Что входит в стоимость?

    Подготовка участка, проект, материалы, сборка и установка домокоплекта

    3D проект

    Архитектурное решение с 3D видами

    Конструктивная часть

    План фундамента (по согласованию), размер кровли, сборочные чертежи всех элементов дома от нижнего бруса и до стропильной системы

    Производство, пропитка и покраска клееного бруса

    Подготовка клееного бруса для составления стен дома и стропильной системы. Пропитка бруса TEKNOS,ZOBEL, Sirca (пропитать дом необходимо сразу же после сборки). Наша компания может оказать услугу по пропитке и покраске дома после согласования цвета с заказчиком. Это наше требование и рекомендация, так как при отсутствии защитного слоя (лака, грунтовки, масла), дерево может впитать влагу, потемнеть/почернеть. В таком случае производитель не несет гарантию за дом.

    Окна и двери

    Деревянные окна, двухкакмерные стеклопакеты с европейской фурнитурой, деревянные двери с немецкой фурнитурой и замками

    Кровля

    Фальцевая кровля, металлочерепица, гибкая кровля), утеплитель компании “Технониколь”

    Этапы постройки дома

    постройки дома

    Похожие проекты

    Дом KД-101

    Этажность:

    1

    Спален:

    3

    Санузел:

    1

    Стоимость:

    Уточняйте у менеджера

    Подробнее

    КД-126

    Этажность:

    1

    Спален:

    2

    Санузел:

    1

    Стоимость:

    Уточняйте у менеджера

    Подробнее

    Ганцевичи

    Этажность:

    2

    Спален:

    2

    Санузел:

    1

    Стоимость:

    Уточняйте у менеджера

    Подробнее